Inicio
Proyectos
Espacios públicos y mobiliario urbano
Rehabilitaciones y reformas
Viviendas obra nueva
Vivienda unifamiliar en Betera, Valencia
Once viviendas en Tenerife
Vivienda en Pont de Suer, Huesca
Edificios singulares
Concursos
Bioconstrucción
Proyectos Satélite
Nuestro estudio
Contacto
Podéis seguirnos también en facebook.
Haz click aquí debajo y di "ME GUSTA"
Compartir
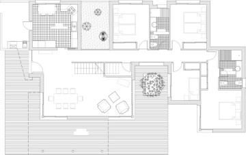
Vivienda unifamiliar en Bétera
Planta de ordenación general
Planta distribución