Reforma de vivienda en Valencia I

Se trata de una reforma en una vivienda perteneciente a un edificio de los años 70. La vivienda es totalmente exterior y principalmente lo que se ha modificado es la situación de cocina y baño consiguiendo un espacio de relación en el que la cocina está integrada en el salón comedor creando un espacio muy agradable más adaptado a las necesidades de los usuarios.

En la reforma se han utilizado materiales y criterios de bioconstrucción como la pintura al silicato, tarima de madera de roble, griferías con sistema de reducción de caudal y modificación de las conducciones eléctricas a fin de evitar el paso por las cabeceras de las camas. Las carpinterías existentes se han sustituido por carpintería de aluminio con rotura de puente térmico y vidrios con cámara.

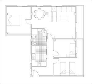
Distribución inicial
Distribución reformada