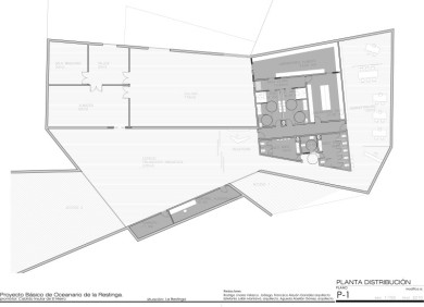
OCEANARIO DEL HIERRO

El presente proyecto se encuentra en desarrollo. Se ha realizado junto al arquitecto Francisco Alayón Gonzalez y con el biólogo Rodrigo Linares Velasco.

Se trata de un edificio destinado a la investigación de la reserva marina que se encuentra junto a la Restinga donde además se acogerán eventos de presentación de dicha información para su divulgación y como referente en la investigación marítima.

Emplazamiento
Imagen virtual
Imagen virtual
Planta
Alzados
Secciones