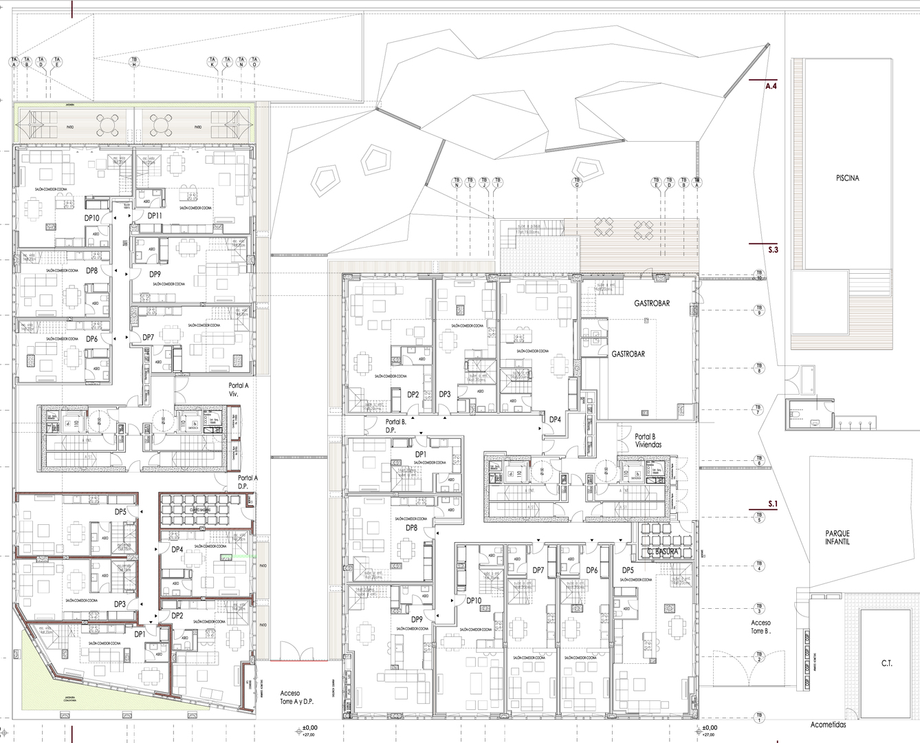
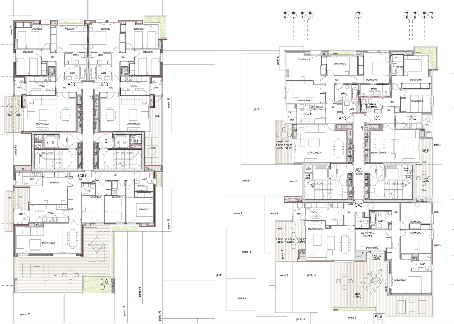
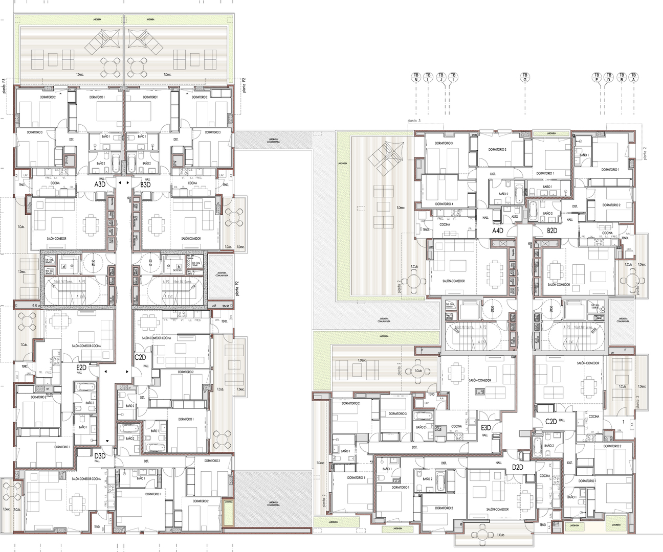
Desarrollo proyecto ejecución 

102 Viviendas en Quatre Carreres, Valencia

Cliente: Manzanares Arquitectos, S.L.

Desarrollo gráfico del proyecto:

 

- Plantas con definición hasta nivel composición de tabiquería

- Alzados y Secciones

- Memorias falsos techos

- Memorias carpintería exterior e interior

- Memoria tabiquería

- Memoria cerrajería

- Revisión y adaptación de planos de arquitectura con planos de instalaciones y estructura