Proyectos Satélite

Desde Estudio Satélite damos soporte a estudios externos para poder abordar los picos de trabajo que tantas veces tienen lugar en nuestra profesión.

Somos un equipo de profesionales con experiencia que desarrollamos proyectos, comprometiéndonos en plazos, para que puedan cumplirse los compromisos acordados.

Abordamos cualquier parte de desarrollo del proyecto y evitamos a nuestros clientes tener que hacer ampliaciones de plantilla para momentos puntuales.

 

-Delineación de planos de arquitectura

-Desarrollo de Memorias gráficas

-Detalles constructivos

-Memorias descriptivas y constructivas

-Mediciones

-Asistencia en dirección de obra

 

Pídenos una cita y te informaremos personalmente de todo:

 

                       estudio@estudiosatelite.com

 

 

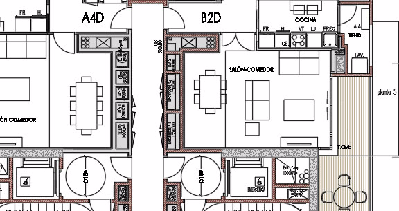
Desarrollo proyecto ejecución 

102 viviendas en Quatre Carreres, Valencia.

Para el estudio:

Manzanares Arquitectos S.L.